Appartement 2 pièces Les Saisies, 4 personnes - FR-1-594-320
Hauteluce
propre moyen de transport
8.3/10
Plus d´informationPhotos Appartement 2 pièces Les Saisies, 4 personnes - FR-1-594-320
Hauteluce - 400 Route du Mont Bisanne Appartement 1 - RDC - Bâtiment D
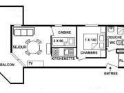
L’hébergement Appartement 2 pièces Les Saisies, 4 personnes - FR-1-594-320 se situe à Hauteluce, à respectivement 35 km et 40 km de ces lieux d’intérêt : Halle Olympique dAlbertville et Le Valleen Gondola. Vous pourrez pratiquer le ski dans les environs. Cette maison de vacances possède un balcon.
Cette maison de vacances comprend 1 chambre, une télévision, une cuisine équipée avec un réfrigérateur et un lave-vaisselle, ainsi que 1 salle de bains avec une douche.
L’établissement dispose dun local à skis.
Laéroport le plus proche (Aéroport de Chambéry - Savoie) est à 93 km.
Arrivée à partir de 16:00 et se termine à 10:00.
Vous devrez présenter une pièce didentité avec photo et une carte de crédit lors de lenregistrement. Veuillez noter que toutes les demandes spéciales seront satisfaites sous réserve de disponibilité et pourront entraîner des frais supplémentaires.
Les enterrements de vie de célibataire et autres fêtes de ce type sont interdits dans cet établissement.
Veuillez informer létablissement à lavance de lheure à laquelle vous prévoyez darriver. Vous pouvez indiquer cette information dans la rubrique « Demandes spéciales » lors de la réservation ou contacter directement létablissement. Ses coordonnées figurent sur votre confirmation de réservation.
Maison de Vacances. Featuring a private entrance, this holiday home also is comprised of 1 separate bedroom, 1 bathroom with a shower, a kitchen and a dining area. The well-equipped kitchen features a refrigerator, a dishwasher and kitchenware. Boasting a balcony, this holiday home also offers a coffee machine, heating and a TV. The unit offers 1 bed.
Informations complémentaires sur l´offre fr - Hauteluce - Appartement 2 pièces Les Saisies, 4 personnes - FR-1-594-320, les avis des vacanciers ainsi que les dates disponibles sont à retrouver sur le site notre associé.
Réserver
L´offre de notre partenaire: Booking.com BG.6775377









